4" 增强型潜油泵安装
(文中图片可点击放大)
注意
关于本出版物维得路特公司不做任何保证包括但不仅限于作为商品销售和特殊应用。维得路特公司对于这里或者偶然或者以后引起的与本出版物的加工性能和使用有关的损害不负责任。维德路特保留有改变系统及其特征的特权,或者改变本出版物所包含内容的权利。本出版物包含的信息是受版权保护的。我们保留所有的权利。没有维德路特事先的书面同意,不得将其中的任何部分影印、复制或翻译成另一种语言。致电4006289626向红夹克技术支持中心咨询更多发现并修理故障的信息。
损坏申明
1. 一旦收到所有的元件和组件,你就应该将所有部件都检查一遍。如果发现有损坏的部件,请在运货单上写一份完整详细的损坏说明。运送代理商必须对你的检查进行核实然后在损坏说明上签字。
2. 立即将损坏或损失通知给供货商。你必须亲自或电话通知供货商。书面确认书必须在48小时内寄出。如果没有检查和快速的报告,铁路和公路运营商只会勉强为损坏的商品做调整。
3. 卖方要承担货物损失或损坏的风险。提交一份与送货商签字的申明是买方的责任。
综述
红夹克潜油涡轮泵(STP)能满足先进的环保要求,实用,安全而顺畅。红夹克潜油涡轮泵(STP)符合4英寸美国标准椎管螺纹NPT,薄壁立管的要求,而且适合各种功率的红夹克油泵。
红夹克潜油涡轮泵(STP)新性能有:
• 排除维修发生的溢油
可提升的止回阀为管道降压和油品返回油罐提供了更大的空间。
• 实现真空监控
红夹克传感虹吸系统是一个分级监测虹吸系统。这个系统是专门为真空监测所设计的,而且与维德路特公司的真空传感器相连。油泵提供两个虹吸口。红夹克传感虹吸系统将一整块创新设计的橡胶止回阀和一个内嵌的滤网组合在一起,因此能够减少阻塞和故障,它们能够引起假警报以及停止真空监测系统。
• 插销轭接线盒
当前的安全措施是:当在维修现有的STP潜油泵时要断开电路断路器,并将螺栓向上回拧一英寸,接着用手将轭接线盒分开。请关掉红夹克STP潜油涡轮泵的断路器,然后将两颗固定伸缩泵管的螺丝帽回拧到适当的位置,这样轭接线盒就断开了。在维修完成后,再拧紧两个螺丝帽时,电路重新变通。整个过程是安全,简单而省事。
• 易于维修的可伸缩泵管
当拧下固定伸缩泵管的两颗螺钉时,红夹克潜油涡轮泵设计的模具弹簧就会使密封圈松开。不需要任何外力或者专门的设备来松动密封圈。另外,所有相连的零部件都已经被移到泵座上;所以当维修或者升级需要拆掉伸缩泵管时,就不必拆掉零部件、测漏仪或虹吸装置。
• 泵座允许垂直或水平卸油
红夹克潜油涡轮泵设计成垂直卸油,但是具有足够范围尺寸的半径来允许弯头提供旁侧的卸油口。事实上,卸油口在泵座上的位置越来越高,因此旁侧卸油口就和潜油泵的其他卸油口处于相同的水平面。
•内置的承包商导线盒
电气连接箱(承包商导线盒)内置于红夹克SPT潜油泵的泵座内,而且与油品通道完全隔离。与现有的系统不同的是,无需调节器来调节轭装置,使得油泵的安装很容易。
• 管线泄漏检测
维德路特公司/红夹克工业界领先的压力式管道泄漏检测(PLLD)遵照环境保护设计,没有为环境保护提出的机械(MLLD)或电子(ELLD)系统的油品流量限。
安全防范
下面的安全符号会出现在整个手册中,以此提醒你注意危险和安全防范

油品兼容性
红夹克油泵适用于100%的汽油或柴油,以及80%的汽油和20%的甲醇,乙醇,TAME, ETBE, 或MTBE的混合物(见表1)。所有型号包括前缀为AG的泵电机组件UMP适用于100%的汽油或柴油,以及80%的汽油和20%的甲醇,乙醇,TAME, ETBE, 或MTBE的混合物。油泵是美国安全实验所UL认证的(I级,D组大气),而且符合欧洲电工标准化委员会(CENELEC)的标准以及欧洲94/9/EC号指示“潜在爆炸性空气中的设备” (II2 G Ex IIA T4)的要求。
表 1. 最大比重和最大粘性

红夹克的特色是配有可变长度的油管和导线管,允许调整油泵的长度以拓宽油泵的长度适应范围。松开油管上的夹头,就可以伸长或压缩油管,改变油泵的长度。可变长度油管的三种尺寸能满足大部分油泵(RJ1, RJ2, 和 RJ3)的要求。
安装与泵座尺寸
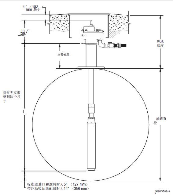
油泵尺寸的选择
插图 4 所示为油泵所需要的尺寸

插图 4. 测量油罐(见表 2 中的可调整范围).
注意: 泵电机组件的中心线与卸油管底部的中心线的距离最小应为3英尺(914.4mm)。如果改距离小于3英尺,卸油之后加油时易发生气堵现象。
表 3 所示为油泵电气服务要求
表 4列出的是泵电机组件UMP的重量和长度,表5 列出的是油泵的关闭压。
注意:下表所列的重量和长度只是近似值,会随着制造公差的不同而发生变化。
可选择式滤网可以作为现场安装附件,在现场安装时需要将下表所列的长度尺寸加上35/8英寸(92毫米)。对带有浮动吸油管适配器的油泵,需要加长23/8英寸(59毫米)和4磅(1.8千克)
安装
安装UMP电机
表6列出了每个泵帽/泵座所要用到的组件UMP。
可以通过标记在外壳上的型号识别UMP。已装有油管的泵帽/泵座组件可以通过泵帽铭牌上的产品编号进行识别。附件袋内的零件有:4个5/16-18内六角螺钉,4个5/16锁紧垫片和一个出油口垫圈。附件袋可以通过包装袋上标明的部件编号(144-327-4)来识别(见插图6)。
用附件袋#144-327-4中的零件将UMP 安装到泵帽/泵座上的油管出油口上。
注意:推荐使用工具(无火花):3/4英寸扳手,剪线钳和剥皮钳。
1. 目测出油接头的末端的导线连接器。确定导线连接器位于其插槽内,而且其标签位于插槽内的开口处(见插图7)。

2. 将新的卸油口密封垫放在UMP上,并对正所有孔。 (见插图 8).
注意: 使用其他厂商同类密封垫时密封效果不佳,会降低本产品的性能。
3. 将泵电机组件上的定位销和四个螺钉孔与卸油口上的孔对正,并只用手力将泵电机组件推上。安装泵电机组件的固定螺丝前,泵电机组件应该与卸油口非常适合而紧密地连在一起。
注意: 用手将泵电机组件UMP安装在卸油口上。如果泵电机组件UMP不是非常紧密地与卸油口连接在一起,请卸下UMP查找并解决问题。

4. 将螺栓及锁紧垫圈拧入泵电机组件UMP中(见插图8),用手带紧之后再用力矩扳手按对角线十字交叉顺序逐渐拧紧螺栓,力矩为7 ft-lbs(11 N*m)。
注意:不要用螺栓将泵电机组件(UMP)拉到紧固位置。按对角线十字交叉顺序逐渐拧紧螺栓。螺栓不要拧得过紧。
安装油泵
注意:
• 红夹克潜油泵的工作环境为1级D组大气。
• 说明书和安装指南随生产厂家设计改动而变化。
• 工作介质的温度不能超过105°F (41°C),否则会引起泵电机组件内的热保护动作。
1. 将立管安装到油管的4英寸孔上。涂上螺纹石油密封剂,拧紧立管直至密封。
2. 图 7所示,测量油管底到立管上口的距离。

3. 解开泵帽电源导线并把它缕直放平,以避免它进入导线管时打结。
4. 松开锁紧装置。先松开锁紧螺母边缘的锁定螺丝,在松开锁紧螺母(见插图10)。
注意:UMP轻微旋转将松动密封垫,使得调节UMP到合适的长度变得很容易 。

5. 参见插图 11,将泵电机组件 (UMP)拉至泵头底部与泵电机组件(UMP)底部的距离比在第2步中测得的
距离短5英寸(125mm)(有浮动吸油管为15英寸(381mm) 。
注意: 4.如果泵电机组件配有浮动吸油连接器,请参见第4页中的“推荐使用的浮动吸油装置的安装方法”

注意:小心不要损伤电机导线。如果潜油泵的长度需要较短,将电机导线拉紧,导线不打结即可。
6. 拧紧锁紧螺母,拧紧力矩不小于150 ft-lbs (200 N*m),然后再拧紧紧定螺丝,力矩为30 - 35 in. Ib. (3.5 - 4N*m)。
注意:每台设备都必须安装回油管,以确保不影响电子油罐监测系统。
7. 将回油管安装到带有倒钩的装置上,并用夹子夹紧。(见插图12)

8. 将回油管顺放在油管的旁边,从卸油口之上切掉1 - 3 英寸 (25 - 76 mm) 。
9. 用带子将回油管和油管绑在一起。大约在距泵头6英寸(152mm),距卸油口6英寸及管的中间各绑一处(见 插图 13)。
注意:带子不要系得太紧,否则回油管会因为太紧而变的扁平,从而限制流速,干扰虹吸系统的正常运转。

10. 将电机导线穿进泵帽接线盒。从泵帽外大约8英寸(200mm)处剪断电机导线。
11. 六根导线中,三根来自泵帽护罩内的公接头,另外三根来自UMP。
12. 将六根导线的绝缘层都剥去3/8英寸。
13. 将UMP与公接头的颜色相同的线连接在一起。接线完毕后,清理泵帽接线盒内的线圈(见插图14)。
14. 用凡士林润滑泵帽接线盒盖(带吊环螺栓)上的O型环。泵帽接线盒盖内的螺钉不必要涂上螺纹石油密封剂。扭转力矩为35 ft-lbs (50N*m)
15. 将油泵装到立管上,并用螺纹石油密封剂密封,防止漏水,并将管线与加油机对准连接好。
从电源板到红夹克油泵的接线
将合格的金属导线管接到泵座承包商导线盒的电源线入口处(见插图15的剖视图)。
警告!维修油泵前,一定要断开电源,并在电源箱上做好标记。
注意:由于安装需要得到欧洲易爆气体(ATEX)安全认证认证,所以终端用户必须使用Atex EEx d MB认证的电缆固定头或密闭盒。
松开压缩线扣内的两颗螺钉以便能够将线扣从其位于泵座承包商接线盒底部的(见插图15)插孔中取出。注意线扣组件的上部(面对泵座)的直径比底部的直径大,线扣上有两个开放的孔和三个插有塑料棒的孔。塑料棒能够密封线扣,而且在任何闲置的孔内都必须插上塑料棒。例如,如果你从电源板上拉出三根电线,那么用掉两个空的插孔,还要从两根直径较小的塑料棒中卸掉一根来为第三根电线流出位置。每一根输入电源线都要穿过线扣的空孔。再将线扣放回泵座承包商导线盒内的插槽中,然后拧紧线扣内的两颗螺丝,以确定将线扣压缩好并密封好了电线入口。
对于单相油泵而言 (带电容器)
1. 将电源接线板的L1电线接到泵座母连接器的黄色线上(见插图16中的接线图)。
2. 将泵座母连接器的红线接到电容器其中一个接线柱的一个端子上。
3. 将泵座内母连接器的黑线连接到电容器另一个接线柱的一个端子上。
4. 将短黑线带标记的末端(在电容器套件中)连接到电容器上连接泵座母连接器的黑线的同一极一个末端上。将
电源板的L2连接到黑线的开口端。
5. 使用时,将电源板上的地线接到泵座内的地线上(见插图15)
6. 更换现场布线盒的盖子。安装前请检查O型环,如果必要更换掉O型环。用凡士林润滑O型环。扭转力矩为35 ft-lbs(50 N*m)。不必使用螺纹石油密封剂。





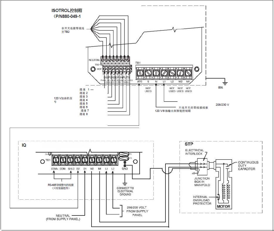
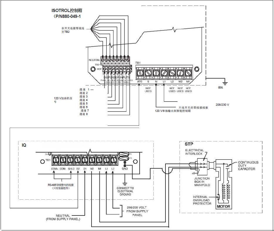
插图 21. IsOtrOl 到智能系统的接线-120 V加油机信号
TB1的N端和TB2的N端应结合在一起,再连接到上述的电源接线板上。
TB2的N端只能连接一根“电线”。
小心!为避免能导致ATG设备输入端损坏的交叉相位影响,L1 (TB1)的相位必须和ATG供电设备电源相位相匹配。
普通接线注意
导线耐热温度为90℃。
按照当地规程接地线。

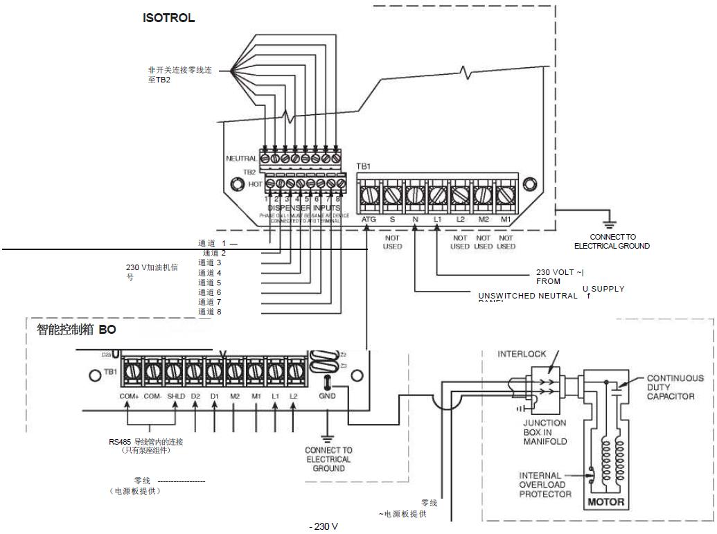
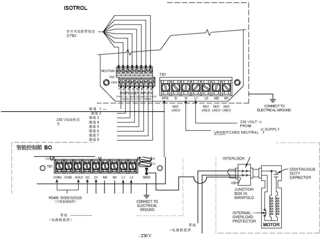
插图 22. IsOtrOl 到智能系统的接线-230 V加油机信号
警告! 此设备能在加油机油泵启动(HOOk)信号和潜油泵(STP)控制继电器之间提供电气隔离。但是,在加油机内部的其他部位依然会存在通电的情况。连接TB1的N端和TB2的N端的零线必须来自电源接线板,而起必须实永久性连接的,不连开关的。
TB1的N端和TB2的N端应结合在一起,再连接到上述的电源接线板上。
TB2的N端只能连接一根“电线”。
小心!为避免能导致ATG设备输入端损坏的交叉相位影响,L1 (TB1)的相位必须和ATG供电设备电源相位相匹配。
普通接线注意
导线耐热温度为90℃。
按照当地规程接地线。
安装用于双联操作系统的两台油泵
当需要更高的流速时,可以利用一个泵座在同一个管道内安装2个泵。按照下面的说明进行安装(图23),双联系统能够提供备用支持。即使一个泵停止运转,抽油工作也能继续进行。
另外,还可将维德路特公司的红夹克的智能控制元件连接到附加控制箱上,从而可以使每个油罐内的四台油泵按基本要求依次工作。

注意!每台油泵的卸油管内需要安装具有卸压功能的止回阀,这样,即使油泵不工作时,油泵就不会因为邻近油泵的卸压系统的作用而使其油品泵出来。
注意: 为了方便维修和故障查找工作,应当在出油管线的泵末端安装球阀(见插图 23)。
单相双联油泵的接线
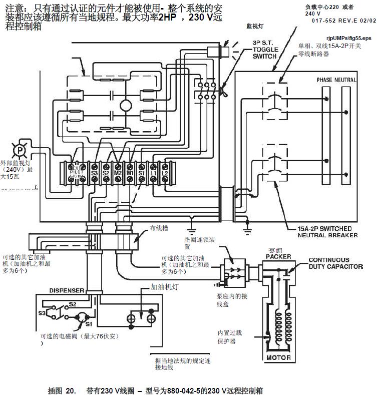
插图24所示为在任意组合的加油机开通时,允许2台STP潜油泵同时运行的布线情况。为了能够使其单独运转,可以手动关闭安装在控制箱一侧外面的拨动式开关。

虹吸口
红夹克油泵的虹吸口位于一个黄铜制的虹吸装置内,此装置适合两个真空端口终的一个(插图25)。拧松引入虹吸管顶部的六角螺母就可以旋转端口末端。虹吸装置固定螺母的扭转力矩为15-30 ft-lbs (20-41 N*m)

注意: 应该卸下虹吸装置内的1/4" NPT管塞,并安上虹吸管。
小心!安装管道螺纹前,请使用新鲜的,通过UL认证的汽油螺纹密封胶。
油泵的初始启动
开启油泵,并以至少15加仑(57升)的油量抽吸通过每台加油机从而净化空气。从距潜油泵最远的加油机处开始,逐步向潜油泵处。
服务与维修
更换UMP
所需套件:
• UMP 更换套件(P/N 144-327-4)
• 部件/密封套件 (AG) P/N 410154-001
程序:
注意!开始维修油泵前,必须断开电源并对电源加锁,在电源上做标识。
1. 如果油泵的下游管线装有球阀,请关闭它。
2. 卸掉2个可拔出的锁紧螺栓(见插图26)。锁紧螺栓位于可拔出的法兰与泵座之间,螺栓上的弹簧会将螺栓推出,从而破坏密封性能。

3. 拉出可拔出元件。
4. 卸掉四颗固定出油接口的螺栓(如插图27所示),然后取下旧的油泵。废弃旧的垫圈。

5. 从UMP更换套件中拿出新的垫圈放在新的UMP上,并对准所有的孔。
小心! 使用竞争对手泵用电机组件的密封垫圈时不能完全密封,并会降低本产品的性能。
6. 将导线连接器拉出出油接头,直到能看见插槽侧壁内的O形环(见插图28)。废弃掉从连接器上卸下的O形环。从套件中取出一个0.551" 内径 x0.070"宽的O形环,并涂上凡士林。将新的O形环装到连接器上。用凡士林润滑导线连接器,并将之装回其原来所在的位置,确定其标签在插槽内的开口处。

7. 调整新UMP上的定位销,对准并插入出油接头上的孔(参见插图28),只使用手劲将泵电机组件推到位。安装固定螺栓之前泵电机组件只能轻靠在出油口处。
注意: 请使用手力将泵用电机组件安装在出油接头上。如果泵用电机组件没有正确地安置好, 请从出油接头上轻柔移开泵用电机组件然后重新安装好。
8. 安装泵用电机组件的四个固定螺丝和锁紧垫圈。使用扳手按对角线十字交叉顺序逐渐拧紧螺钉。拧紧力矩为7 英尺-英镑。(11牛顿• 米)。
注意:请勿使用螺钉将泵用电机组件拉到固定位置。按照对角线十字交叉顺序逐渐拧紧螺丝 。螺丝不要拧得过紧。不遵守这些操作会损坏零部件。
9. 从硬件/密封套件内取出三个可拔出的O形密封垫(3.975" 内径 x 0.210" 宽[上部], 3.850" 内径 x 0.210" 宽[中间], 和3.725" x 0.210" 宽 [下部])。这三个密封垫的尺寸十分相近,所以在更换密封垫之前一定要仔细分辨。用凡士林润滑每个O形环并将之装到指定的位置(见插图 29)。
10. 卸下泵座内母连接器的O形环-见插图29。从套件箱内取出一个0.862" 内径 x 0.103" 宽 的O形环,并涂上凡士林。将O形环滑到母连接器上,然后将之推进O形环槽内。
11. 重新把可拔出元件安装到泵帽和油罐上。使用扳手按对角线十字交叉顺序逐渐拧紧螺钉。拧紧力矩为50 英尺-英镑。(68牛顿• 米)。

更换泵帽内的电容器
警告! 维修油泵之前要断开电源,并做好标记。
警告! 使用普通型的电容器会导致严重的伤亡事故。普通型的电容器不包括内部泄放电阻
注意:带有内部泄放电阻的、能够持续工作的440V,17.5μF电容器用于3/4HP型号。带有内部泄放电阻的、能够持续工作的440V,25μF电容器用于1- 1/2HP型号。带有内部泄放电阻的、能够持续工作的440V,40μF电容器用于2HP型号。
所需套件:
• 电容器套件 (P/N 410164-001 [17.5 |iF], 410164-002 [25 |iF], Or 410164-003 [40 |iF] as required).
• 硬件/密封套件 (AG) P/N 410154-001
程序:
1. 卸掉电容器进口盖 (见插图 30)

2. 检查当前与旧电容器相连接的电线的接线情况,因为电线将以同样的方式与更换的新的电容器相连。
3. 卸掉旧电容器上的电线并卸掉泵座内的旧电容器。
4. 将新的电容器插入泵座内,并象旧电容器连线那样连接线路。(参见19页上的插图16)
5. 用凡士林润滑O形环之后,更换电容器入口盖内的O形环(2.090" 内径 x 0.118" 宽)。重新装上盖子。不要用螺纹石油密封剂。盖子的扭转力矩为35 ft-lbs (50 N*m)。
安装虹吸装置
警告! 维修油泵之前要断开电源,并做好标记。
所需套件:
• 虹吸管套件 (P/N 410151-001)
程序:
1. 如果油泵下游管线安装有球阀,请关闭球阀。
2. 卸下并存好通风螺纹塞上的保护塞,顺时针拧转螺纹塞(见插图31)。当螺纹塞接近其底部位置时,你将听到系统减压的声音。继续拧螺纹塞直到不能再拧。回拧螺纹塞4圈使止回阀升起,从而释放泵座水压槽内的油品。
3. 从泵座上卸下虹吸口的一个塞子(两个塞子)。 (见(插图 31).

4. 从套件箱内取出虹吸管装置,并为虹吸管装置外面的两个O型环图上凡士林。
5. 将虹吸管装置插入虹吸口(见插图32)。将虹吸出油口旋转到所需要的方向,接着用手将虹吸装置的固定螺钉拧紧。扭转力矩为15 - 30 ft-lbs (20-41 N*m)。
6. 从虹吸出油口上卸下1/4" NPT管塞,并装上虹吸管道系统。
7. .反时针一直向上旋转通风螺纹塞,当螺钉接近其顶部位置时,止回阀落入其所在位置。
8. 重新把通风螺纹塞上的保护塞装上。
9. 反时针旋转通风用带孔螺钉2-3圈。 (见插图 31).
10. 开启油泵,并让油泵运转2分钟以净化泵座水压槽内的空气。在油泵还在运转的同时,顺时针旋转放气用的带孔螺钉直至完全旋紧。
11. 打开油泵下游管道的球阀。

更换止回阀组件
警告! 维修油泵之前要断开电源,并在电源箱上做好标记。
所需套件:
• 止回阀护罩套件 (P/N 410152-001), 或者
• 止回阀套件 (P/N 410153-001) 和 硬件/密封套件 (AG) (P/N 410154-001)
程序:
1. 如果油泵下游管线安装油球阀,请关闭球阀。
2. 卸下并存好通风螺纹塞上的保护塞,顺时针拧转螺纹塞(见插图44)。当螺纹塞接近其底部位置时,你将听到系统减压的声音。继续拧螺纹塞直到不能再拧。回拧螺纹塞4圈使止回阀升起,从而释放泵座水压槽内的油品。
3. 打开止回阀护罩。将弹簧和止回阀从泵座中拿出。将护罩和止回阀内的O型圈废弃掉。
4. 从套件箱内拿出新的止回阀和弹簧。如果你有止回阀护罩套件箱,请从套件箱内取出新的护罩和O型圈(2.609"内径内径 x 0.139" 宽),如果你只有止回阀套件箱,则从硬件/密封套件箱内取出一个新的2.609" 内径 x0.139"w内径e的护罩O型圈。
5. 润滑新的护罩O型圈,止回阀内涂有凡士林的新O型圈大小为1.049" 内径 x 0.103" 宽。.
6. 将止回阀(带有润滑过的O形环)入泵座内,并在止回阀上装上新的弹簧(见插图33)。在弹簧和止回阀上安装带O形环的止回阀护罩,并用螺丝拧紧。护罩的扭转力矩为20 - 50 ft-lbs (27 - 67 N*m)。
7. 反时针转动带孔螺2-3圈(见插图31)。
8. 开启油泵,运转2分钟以净化泵座内水压槽内的空气。在油泵运转的同时,顺时针旋转带孔螺钉,直到全部拧紧。
9. 打开油泵下游管线的球阀。

更换导线管上的套管
所需零件:
• 导线管套管(P/N 410086-001),
• 硬件/密封套件(AG) (P/N410154-001)
程序:
1. 卸下承包商的轴箱盖(第30页上的插图30)。卸下并废弃盖上的O型圈。将盖子放在一边。
2. 在承包商导线盒上安装导线管套管(见18页上的插图15)。注意将电源输入线接到油泵电线上。 记录下哪根电源输入线与哪根油泵电线相连,然后将电源输入线与油泵电线断开,并把电线螺母放在一边。
3. 松开导线管线扣内的两颗螺钉,以便能够从泵座的承包商导线盒的底部取出线扣。继续提升线扣,直到线扣离开电源箱。注意线扣顶部(面对泵座)的直径比底部的直径大,而且在闲置孔内插有塑料棒。塑料棒能够密封线扣,而且任何闲置孔都是必须插上塑料棒。
4. 确定更换套管的方位以便正对着螺丝,将输入电源线都穿过套管内的空孔。在闲置孔上插入塑料棒。
5. 使穿有电源线的套管往下滑至盒其所在的泵座承包商导线插槽内,然后拧紧套管顶板的两颗螺丝以压缩套管并密封电线入口。
6. 按照上述第2步重新连接电源线和油泵线。
7. 从硬件/密封套件箱内取出一个2.090" 内径 x 0.118" 宽的O形环。用凡士林润滑O形环并将之滑至盖子螺纹的法兰。重新装上盖子。不要使用螺纹石油密封剂。盖子的扭转力矩为35 ft-lbs (50 N*m)。
更换电机导线
所需套件:
• UMP 更换套件 (P/N 144-327-4)
• 电机导线(P/N 213-166-1 [10 ft], 213-164-1 [13 ft], Or 213-165-1 [20ft])
• 硬件/密封套件 (AG) P/N 410154-001
程序:
警告! 维修油泵之前要断开电源,并在电源箱上做好标记。
1.卸下两颗可拔出的锁定螺母(见插图34)。卸掉2个可拔出的锁紧螺栓(见插图34)。锁紧螺栓位于可拔出的法兰与泵座之间,螺栓上的弹簧会将螺栓推出,从而破坏密封性能。

2. 拉出可拔出组件。
3. 卸掉四颗固定出油接口的螺栓(如插图35所示),然后取下旧的油泵。废弃旧的垫圈。.

4. 卸下泵帽接线盒盖。废弃从盖上卸下的O形环,并把盖子放在一边。观察接线盒内三对电线的连接。对电线的连接作下记录(相同颜色线接在一起)。断开电线将螺母放在一边。
5. 看着出油接头的末端。将导线连接器拉出出油接头的插槽,废弃卸下来的电机导线。卸下连接器边壁内的O形环。
6. 拿出新的电机导线并缕直线圈。
7. 从硬件/密封套件中拿出一个0.551" 内径 x 0.070"宽的O形圈,并用凡士林润滑之。将O形环插入连接器的边壁凹槽中。
8. 将电机导线穿过连接器插孔并进入泵帽接线盒。在导线所在的出油口末端,在连接器外表面上涂上一些凡士林并将连接器推进其所在出油接头的插槽内。仔细将连接器索引标签与插槽内的开口相对准,如28页插图28的右图所示。
9. 仔细将电机导线拉进泵帽接线盒内,直到有多余的线露出油管外。切掉大约8英寸(200mm)超过泵帽顶部的导线。
10. 剥去三根电机导线后部的绝缘层3/8英寸(10mm)。
11. 将电机和泵帽连接器的颜色相同的导线连接起来。接线完毕后,整理泵帽接线盒内的线圈(见17页插图14).
12. 从硬件/密封套件中取出一个2.090" 内径 x 0.118"宽的O形环。用凡士林润滑泵帽接线盒盖(带吊环螺栓)上的O型环。泵帽接线盒盖内的螺钉不必要涂上螺纹石油密封剂。扭转力矩为35 ft-lbs (50 N*m)
13. 从硬件/密封套件内取出三个可拔出的O形密封垫(3.975" 内径 x 0.210" 宽[上部], 3.850" 内径 x 0.210" 宽[中间], 和3.725" x 0.210" 宽 [下部])。这三个密封垫的尺寸十分相近,所以在更换密封垫之前一定要仔细分辨。用凡士林润滑每个O形环并将之装到指定的位置(见29页的插图 29)。
14. 卸下泵座内公接头的O形环-见29页插图29。从套件中拿出一个0.862" 内径 x 0.103"宽的O形环,并用凡士林润滑之。将O形环穿过母连接器,并将之推进其所在的凹槽内。
15. 重新将可拔出组件装入泵座和油罐中。按照十字交叉的方式拧紧泵帽上的固定螺母,力矩为75到85 ft-lbs(103 到117 N*m)。
更换泵帽到泵座的线路连接器
所需套件:
• 电连接器套件 (P/N 410165-001)
• 硬件/密封套件 (AG) P/N 410154-001
专门工具 – 套件箱不提供:
• 3/8" 六角扳手,中号标签笔,小条胶带和一小把尺子
程序:
警告! 维修油泵之前要断开电源,并在电源箱上做好标记。
1. 卸掉2个可拔出的锁紧螺栓(见插图36)。锁紧螺栓位于可拔出的法兰与泵座之间,螺栓上的弹簧会将螺栓推出,从而破坏密封性能。
2. 提出可拔出组件并将之放在干净的表面。
3. 卸下泵帽接线盒盖。废弃从盖上卸下的O形环,并把盖子放在一边。观察接线盒内三对电线的连接。对电线的连接作下记录(相同颜色线接在一起)。断开电线将螺母放在一边。
4. 安装泵帽内的公接头。(见插图36)

5. 用老虎钳卸下固定公接头的垫圈。
6. 卸下公接头。
7. 从金属连接器套件中取出新的公接头和固定垫圈。
8. 注意公接头背后的指引插脚(见插图37)。

9. 连接器背后的索引销必须插在公接头插孔的索引孔内(见插图38),这样才能正确地指引公接头插入母连接器。

10.在连接器插销的侧面贴上一小块胶条。(见 插图 39).

11. 将电线穿过公接头并使电线进入泵帽接线盒内。按照你在泵帽表面用记号笔所做的记号,轻轻地把线拉进接线盒。如果指引插脚在指引洞里面,那么当你将连接器推进它所在的插槽时,连接器就不应该转动了。用小尺子测量泵帽表面下到连接器的距离,这个距离应该比1 -3/8"短(见插图40)。紧紧地控制住电线以固定连接器,插入定位垫圈(朝上的尖齿在外),用力将垫圈按下,使之紧固地靠在连接器上。安装固定垫圈后重新检测1 -3/8"的距离,以确定连接器处于适合的深度上。

12. 剥去三根连接器导线的绝缘层3/8 英寸 (10 mm)。
13. 用电线螺母将电机导线和泵帽公接头的颜色相同的线连接在一切。接线完毕后,整理泵帽接线盒内的线圈(见17页上的插图 14)。
14. 从硬件/蜜蜂套件中取出一个2.090"内径 x 0.118"宽的O形圈。用凡士林润滑泵帽接线盒盖(带吊环螺栓)上的O型环。泵帽接线盒盖内的螺钉不必要涂上螺纹石油密封剂。扭转力矩为35 ft-lbs (50N-m)
15. 卸下电容器入口盖(见30页的插图30)。废弃从盖子上卸下的O形环,并把盖子放在一边。观察来自公接头的三根导线。记录下连接器电线与电容器和输入电源电线的连接情况。断开母连接器电线将电线螺母放在一边。
16. 用3/8"六角扳手反时针拧固定母连接器的螺丝大约1 -1I2圈,直到不能提出连接器为止。(见插图41)
注意:不要试图卸下固定螺丝。
17. 从套件中取出新的母连接器和0.862" 内径 x 0.103宽的O形环。将来自连接器的三根电线穿过其插槽的开口并进到电容器内。在你继续来电容器内的电线的同时,下部的连接器侧面的钻眼也就对准其定位螺丝了。连接器尽可能地向下放(位于其插槽的脊上),拧紧定位螺丝。当定位螺丝被拧紧时,它将把连接器转到与公接头相结合的正确位置。
18. 如你在第15步所记录的那样,重新连接连接器的三根导线。
19. 从硬件/密封套件箱内取出一个2.090" 内径 x 0.118" 宽的O形环,并用凡士林润滑O形环。将此O形环放入电容器盖内,并用螺丝拧紧。不要使用螺纹石油密封剂。盖子的扭转力矩为35 ft-lbs (50 N*m)。

20. 从连接器套件中取出0.862" 内径 x 0.103" 宽的O形环,并图上凡士林。将O形环插入母连接器附件的泵帽内的O形环插槽内(参见37页的插图36)。
21. 从硬件/密封套件内取出三个可拔出的O形密封垫(3.975" 内径 x 0.210" 宽[上部], 3.850" 内径 x 0.210" 宽[中间], 和3.725" x 0.210" 宽 [下部])。这三个密封垫的尺寸十分相近,所以在更换密封垫之前一定要仔细分辨。用凡士林润滑每个O形环并将之装到指定的位置(见插图 29)。
22. 重新将可拔出组件安装进泵座和油罐。扳手按对角线十字交叉顺序逐渐拧紧泵帽的固定螺母,力矩为50 ft-lbs(68 N*m)。
安装电子管线测漏仪传感器
所需套件:
• 硬件/密封套件(AG) P/N 410154-001
其他零件:
• 传感器
程序:
警告! 维修油泵之前要断开电源,并在电源箱上做好标记。
1. 如果油泵的下游管线装有球阀,请关闭球阀。
2. 卸下并存好通风螺纹塞上的保护塞,顺时针拧转螺纹塞(见插图31)。当螺纹塞接近其底部位置时,你将听到系统减压的声音。继续拧螺纹塞直到不能再拧。回拧螺纹塞4圈使止回阀升起,从而释放泵座水压槽内的油品。
3.卸下2" 出油口塞子。

4. 取出传感器并图上足够新鲜的,通过UL认证的螺纹石油密封剂。将传感器用螺丝装入2英寸的出油口内并拧紧(关于扭转力矩和电线的连接,参考相关组件的说明)。
5. 反时针旋转带孔螺钉2-3圈(见插图42)。
6. 开启油泵,并让油泵运转2分钟以净化泵座水压槽内的空气。在油泵还在运转的同时,顺时针旋转放气用的带孔螺钉直至完全旋紧。
7. 打开油泵下游管线的球阀。
测试油泵
检测卸压压力
工厂所设置的卸压压力为19 到 25 psi (131 - 172 kPa).
检测卸压压力的两种方法:
• 如安装了电子测漏系统,从电子管线测漏系统的控制部分读取压力值。潜油泵关闭之后的压力值为调节的卸压压力值。
• 在切断阀或潜油泵管线测试口(参见插图43)安装一压力表读取压力值。潜油泵关闭之后的压力值为调节的卸压压力值。

检测油泵的卸压压力
所需设备:
• 可连接到1 /4" NPT 管线测试端口的压力计。
程序:
警告! 维修油泵之前一定要断开电源,进行断电作业,并在电源箱上做好标记。
1. 如果在油泵下游管线安装有球阀,请关闭球阀。
2. 卸下并存好通风螺纹塞上的保护塞,顺时针拧转螺纹塞(见插图43)。当螺纹塞接近其底部位置时,你将听到系统减压的声音。继续拧螺纹塞直到不能再拧。回拧螺纹塞4圈使止回阀升起,从而释放泵座水压槽内的油品。继续反时针旋转螺丝。当螺丝几乎全部拧开时,止回阀将落入其所在的位置。
3. 卸下管线测试端口的塞子(参见插图43),安装压力测试计。
4. 反时针旋转放气用的带孔螺钉2至3圈(见插图43)
5. 开启油泵,并让油泵运转2分钟以净化泵座水压槽内的空气。在油泵还在运转的同时,顺时针旋转放气用的带孔螺钉直至完全旋紧。
6. 关闭油泵,测量卸压压力。
7. .警告! 断开电源,进行断电作业,并在电源箱上做好标记。
8. 如果在油泵的下游管线装有球阀,请关闭球阀。
9. 顺时针拧通风螺纹塞。当螺钉到达底部位置时,你会听到系统减压的声音。继续拧转螺钉直到不能在拧动。回拧螺钉4圈以提起止回阀,并使油品从泵座的水压槽排除。
10. 尽可能地反转通风螺纹塞(当螺纹塞达到顶部位置时,你将听到止回阀落入其所在位置的声音)。
11. 重新装上保护塞。
12. 卸掉测压计。在1/4" NPT管塞上涂上新鲜的,通过UL认证的螺纹石油密封剂,将管塞重新安装在管线测试端口。管塞的扭转力矩为14到21 ft-lbs (19.4 到 29N*m).
13. 反时针旋转带孔螺钉2至3圈。 (见 插图 44).
14. 开启油泵,并让油泵运转2分钟以净化泵座水压槽内的空气。在油泵还在运转的同时,顺时针旋转放气用的带孔螺钉制止完全旋紧。
15. 油泵为进行正常运转准备完毕。
测试管线:
所需设备:
• 与1/4" NPT 管线相连的能够产生压力的设备。
警告! 在工作之前,一定要将电源断开并加锁、在配电箱外做明显标记。
1. 在每个加油机处将管路堵住。
2. 卸下通风螺纹塞上的保护塞,顺时针旋转螺钉(见插图44)。当螺钉到达起底部位置时,你将听到系统减压的声音。继续旋转螺钉,直到不能再旋转为止。

3. 卸下管道测试端口的塞子(见插图44)。在管线测试端口施加50 psi [345 kPa]的管线测试压力。
小心! 过大的压力(超过正常的测试压力50 - 55 psi [345 - 380 kPa]) 可能会损坏止回阀座以及其他系统元件。
4. 为管线减压(如上面第二步所述)并撤掉测试装置。用新鲜的通过UL认证的螺纹石油密封剂涂在1/4" NPT管塞上,并将管塞重新安装在测试端口。管塞的扭转力矩为14到21 ft-lbs (19.4 到 29 N*m)
5. 反时针一直向上旋转通风螺纹塞。当螺纹塞到达气顶部位置时,你会听到止回阀落入其所在位置。重新盖上通风螺纹塞上的保护塞。
6. 反时针旋转放气用的带孔螺钉2-3圈(见插图 44).
7. 开启油泵,并让油泵运转2分钟以净化泵座水压槽内的空气。在油泵还在运转的同时,顺时针旋转放气用的带孔螺钉直至完全旋紧
8. 油泵已为正常工作准备完毕。
测试油罐
所需设备:
• 与1/4" NPT 油管测试端口相连的能够产生压力的设备。
警告! 在工作之前,一定要将电源断开并加锁、在配电箱外做明显标记。
1. 卸下并存好通风螺纹塞上的保护塞,顺时针拧转螺纹塞(见插图44)。当螺纹塞接近其底部位置时,你将听到系统减压的声音。继续拧螺纹塞直到不能再拧。
2. 卸下并存好1/4 " NPT 油罐测试端口塞并装上油罐测试设备(见插图45)。

3. 为油罐减压,并卸下测试设备。在1/4" NPT管塞上涂上新鲜的UL认证的螺纹石油密封剂,并将管塞重新装回油罐测试端口。管塞的扭转力矩为14 到1 ft-lbs (19.4 到9 N*m)。
4. 反时针一直向上旋转通风螺纹塞。当螺纹塞到达气顶部位置时,你会听到止回阀落入其所在位置。重新盖上通风螺纹塞上的保护塞。
5. 反时针旋转放气用的带孔螺钉2-3圈(见插图 44).
6. 开启油泵,并让油泵运转2分钟以净化泵座水压槽内的空气。在油泵还在运转的同时,顺时针旋转放气用的带孔螺钉直至完全旋紧。
7. 油泵已为正常运转准备完毕。












